pequenos ventiladores electricos, sopladores de aire y cortinas de aire | Kyung jin Blower Co.,Ltd.
Productos
ventiladores de entrada simple de instalacion directa
ventiladores-ac-sirocco-con-rotor-externo
ventiladores-en-reversa-con-rotor-rxterno
ventilador-con-conducto-interno
soplador-turbo-centrifugo
ventilador-de-corriente-cruzada
ventiladores-refrigerantes
cortina-de-aire
Ventiladores de Estacionamiento Subterraneo
Estacionamiento Subterraneo
Ventiladores Largos
Soporte de Ventilador
abastecedor-de-aire-y-unidad-de-descarga-para-ventilacion-en-el-hogar
Unidad de Filtro de Ventilador
Impulsor
Centro de Llamadas
Ventiladores de Estacionamiento Subterraneo
Soporte de Ventilador Soporte de Ventilador
Caracteristicas

  El ventilador y la persiana estan integrados a un gabinete por lo cual es simple.
Comparado a un conducto de gran calibre, los soportes de ventiladores pueden instalarse en cielos rasos bajos como instalaciones dispersivas.
Instalado entre pilares para que el cielo raso pueda ser mas bajo.
No hay necesidad de espacio para el ventilador por lo que reduce los gastos de construccion.
Es facil de instalar y el costo de instalacion es accesible.

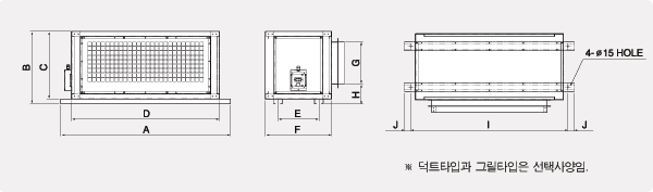
Dibujo Externo




Dimensiones
 
 
N¨¬ de Modelo
ASHF-5000
1330
570
530
1160
320
520
330
156
1230
50
ASHF-7500
1630
690
650
1460
500
700
450
156
1530
ASHF-10000
ASHF-15000
1760
740
700
1590
550
750
500
156
1660
ASHF-20000
ASHF-25000
1970
890
850
1800
860
1060
550
231
1870
ASHF-30000
ASHF-35000
ASHF-40000
2400
1090
1050
2230
1170
1370
750
231
2300
ASHF-45000
ASHF-50000
 
Especificaciones
   
 
Model
Fase/Voltio
Volumen de Aire
Presion de Estatica
Amperio
Motor
ASHF-5000
3¢± * 220/380V
5000 CMH
10~15mmAq
1.1A
0.2KW
ASHF-7500
3¢± * 220/380V
7500 CMH
10~15mmAq
3.5A
1.12KW
ASHF-10000
3¢± * 220/380V
10000 CMH
10~15mmAq
5.6A
2.2KW
ASHF-15000
3¢± * 220/380V
15000 CMH
10~15mmAq
9.2A
2.2KW
ASHF-20000
3¢± * 220/380V
20000 CMH
10~15mmAq
6.1A
3.7KW
ASHF-25000
3¢± * 220/380V
25000 CMH
10~15mmAq
12.1A
5.5KW
ASHF-30000
3¢± * 220/380V
30000 CMH
10~15mmAq
16.3A
7.5KW
ASHF-35000
3¢± * 220/380V
35000 CMH
10~15mmAq
16.3A
7.5KW
ASHF-40000
3¢± * 220/380V
40000 CMH
10~15mmAq
16.3A
7.5KW
ASHF-45000
3¢± * 220/380V
45000 CMH
10~15mmAq
16.3A
7.5KW
ASHF-50000
3¢± * 220/380V
50000 CMH
10~15mmAq
23.2A
11KW
   
Diagrama de Instalacion
   
  En el caso de una habitacion sin ventilador
 

En el caso de una habitacion con ventilador
 

En el caso de instalacion en cielo raso